Oberachdorf :
Neubau Doppelhaus in Wörth an der Donau – als Effizienzhaus 40
Objekt-Nr.: Wörth_01_DHH














Preis:
453.812 €
Wohnfläche ca.:
110 m²
Grundstück ca.:
269 m²
Zimmeranzahl:
4
Dieses attraktive Grundstück in Wörth an der Donau bietet die ideale Grundlage für Ihr neues Zuhause – perfekt geeignet für die Bebauung mit einem modernen Doppelhaus.
In Kombination mit dem durchdachten Hauskonzept „SCALA“ entsteht ein energieeffizientes und zukunftssicheres Eigenheim – ideal für Familien, Paare oder alle, die nachhaltig und kosteneffizient bauen möchten.
Jetzt besonders attraktiv: KfW-Förderung nutzen!
• Pluspunkt: Für den klimafreundlichen Neubau stehen aktuell attraktive KfW-Förderprogramme (z. B. KfW 300) mit besonders günstigen Finanzierungskonditionen zur Verfügung, alternativ das Darlehen KfW 297.
So sichern Sie sich nicht nur Ihr Traumhaus, sondern sparen langfristig deutlich bei den Finanzierungskosten und Energiekosten.
Ihr neues Zuhause – flexibel & mitwachsend
Das Haus passt sich Ihren Lebensphasen an:
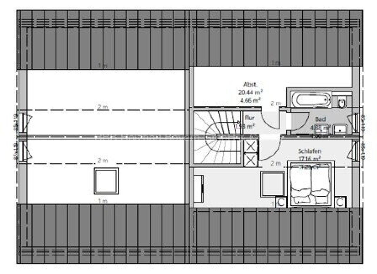
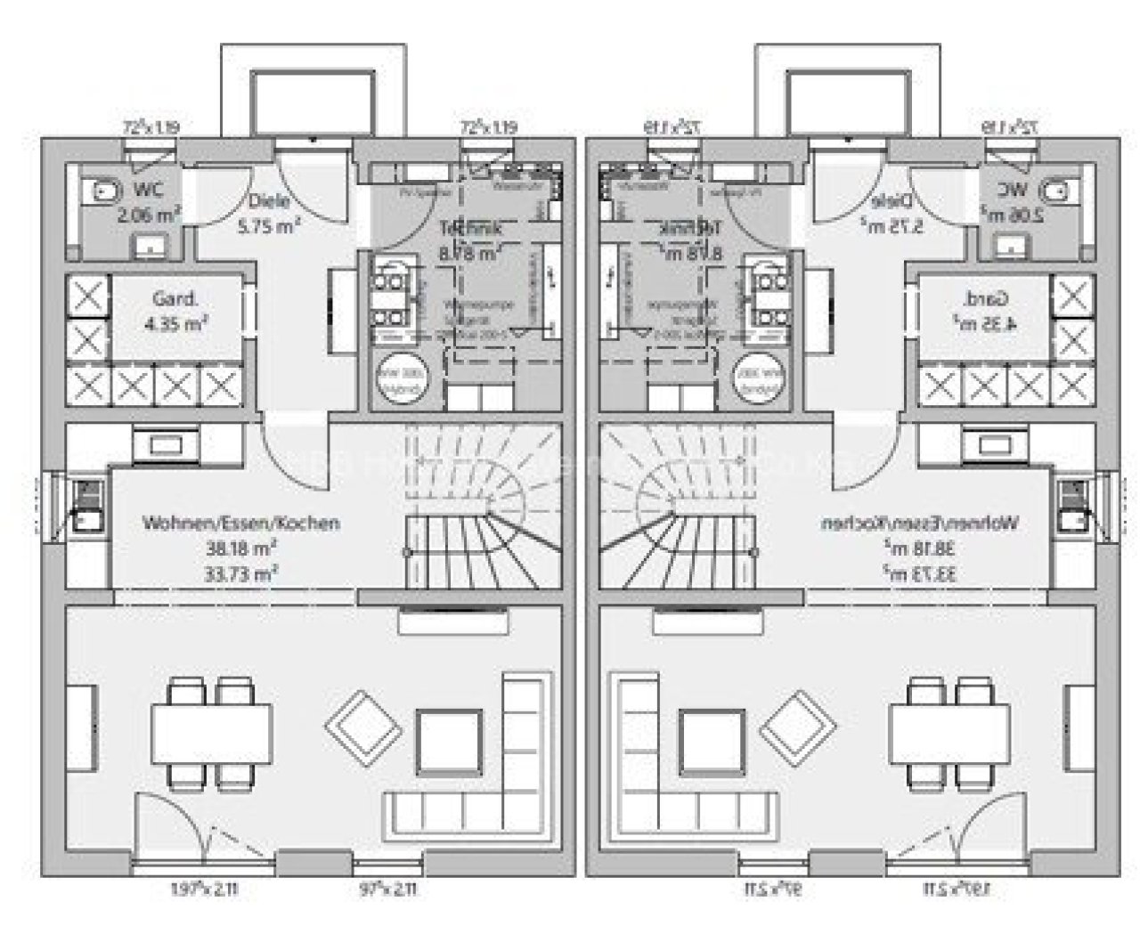
• Erdgeschoss + vollwertiges Obergeschoss
• Optional ausgebautes Dachgeschoss für mehr Platz
• Ideal für Familien, Homeoffice oder Gäste
Haustyp: Doppelhaushälfte
Etagenanzahl: 2
Provisionspflichtig: nein
Nutzfläche ca.: 113,57 m²
Küche: offen
Bad: Dusche
Anzahl Schlafzimmer: 3
Anzahl Badezimmer: 1
Gäste-WC: ja
Dachboden: ja
Keller: nein
Baujahr: 2026
Bauphase: Haus in Planung (projektiert)
Energieklasse: A+
Das könnte Ihnen auch gefallen
Einfamilienhaus mit Grundstück in Pettstadt
Bungalow mit Grundstück in Schlüsselau
HBB Holzbau Bayern GmbH & Co. KG
Frau Barbara Fuchs
Rathausplatz4-6
92439 Bodenwöhr
Telefon: +49 9434 9500













