Neuhütten:
Ihr individuelles Traumhaus in Neuhütten – maßgeschneidert und modern!
Objekt-Nr.: AB03-27

mögliche Außenansicht

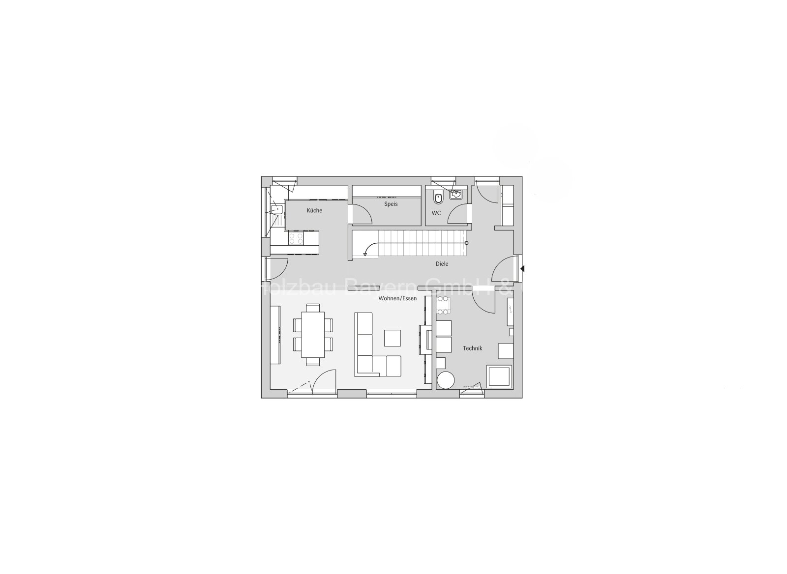
möglicher Grundriss

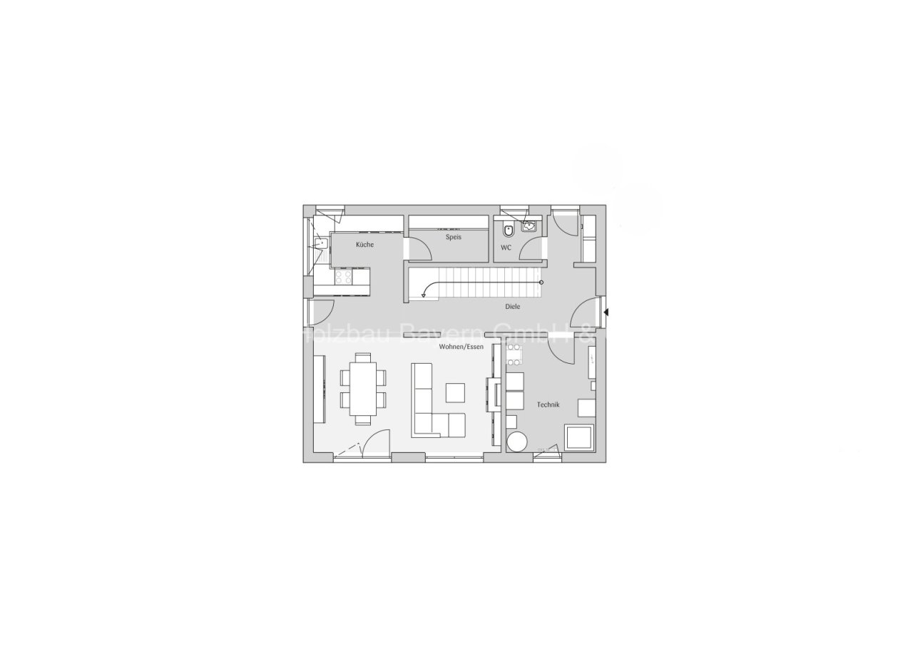
möglicher Grundriss

Große Auswahl - kompetente Beratung

mögliche Außenansicht

Ihr Weg zum Fischer Haus

mögliche Außenansicht

Liebe baut

möglicher Außenansicht









Preis:
419.600 €
Wohnfläche ca.:
120 m²
Grundstück ca.:
760 m²
Zimmeranzahl:
4
Willkommen in Ihrem zukünftigen Traumhaus, das in Neuhütten auf Ihre individuellen Wünsche zugeschnitten wird. Hier erwartet Sie ein großzügiges Raumkonzept mit 4 Zimmern, darunter 3 einladende Schlafzimmer, in denen Sie sich entspannen und wohlfühlen können. Der lichtdurchflutete Wohnbereich und die offene Küche schaffen eine harmonische Verbindung zwischen Wohn- und Essbereich, ideal für gesellige Abende mit Freunden und Familie. Das moderne Badezimmer mit Fenster sorgt für eine angenehme Atmosphäre und ermöglicht Tageslicht, was das morgendliche Ritual besonders angenehm macht. Zudem steht Ihnen ein praktisches Gäste-WC zur Verfügung, welches den Komfort des Hauses unterstreicht. Mit einer Wohnfläche von 120 m² auf einem großzügigen Grundstück von 760 m² ist genügend Platz für Ihre persönlichen Gestaltungsideen vorhanden.
Haustyp: Einfamilienhaus
Provisionspflichtig: nein
Küche: offen
Bad: Fenster
Anzahl Schlafzimmer: 3
Anzahl Badezimmer: 1
Gäste-WC: ja
Baujahr: 2027
Bauphase: Haus in Planung (projektiert)
Zustand: Haus in Planung (projektiert)
Das könnte Ihnen auch gefallen

HBB Holzbau Bayern GmbH & Co. KG
Herr Robert Gerber
Steigfeld 3
63856 Bessenbach
Mobil: +49 175 5973712


















