Kreuzwertheim:
Mit KFW - Förderung und FischerHaus kann ich mir meinen Traum erfüllen!
Objekt-Nr.: AB14_25

mögliche Außenansicht

Ihr Vorteil

mögliche Außenansicht

Ihr Weg zum Wunschhaus

mögliche Außenansicht

große Au swahl

Liebe baut

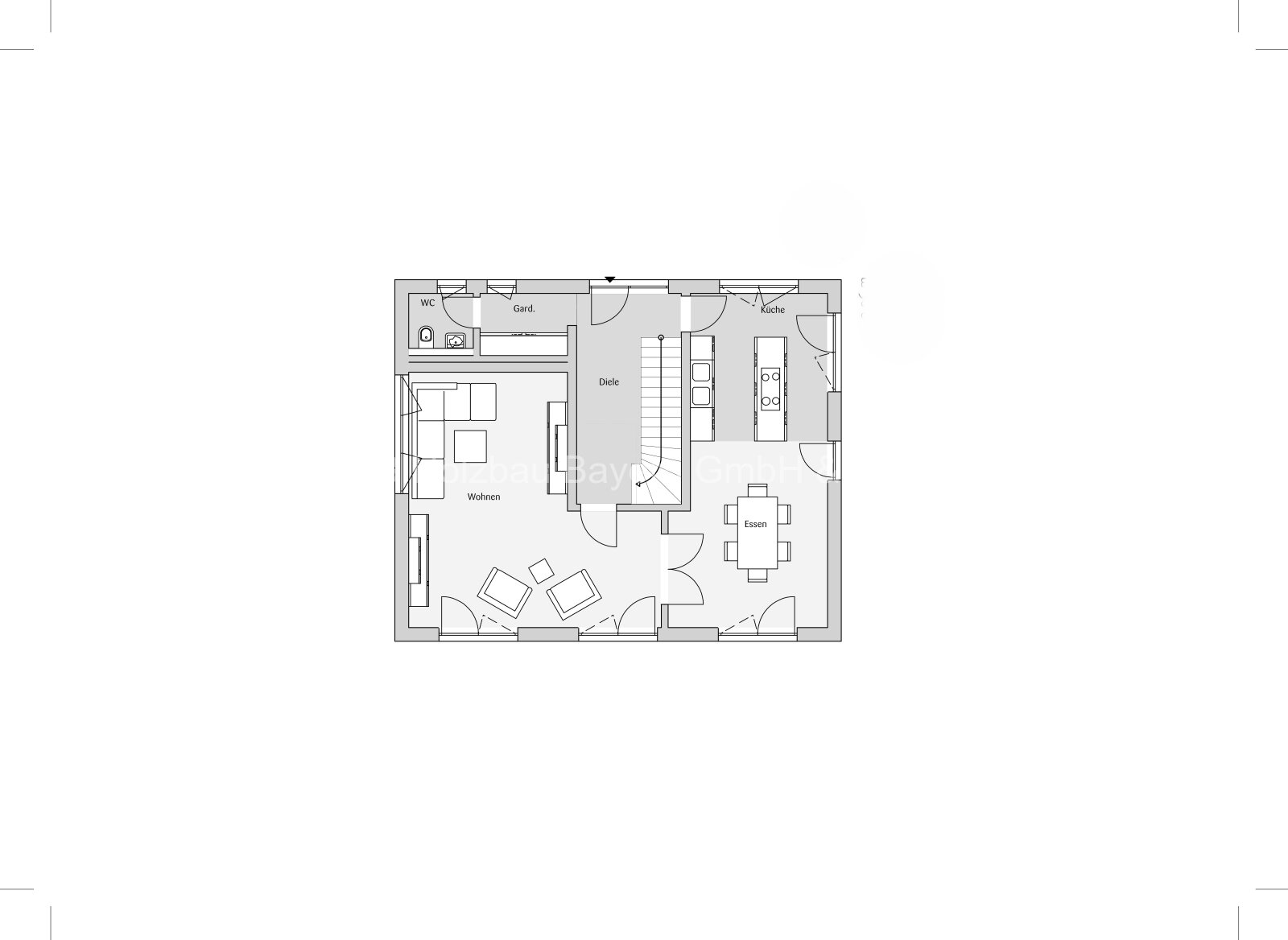
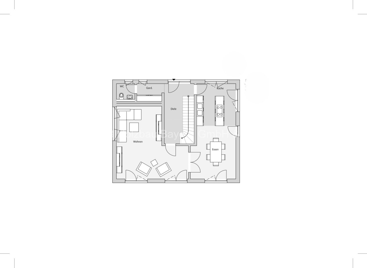
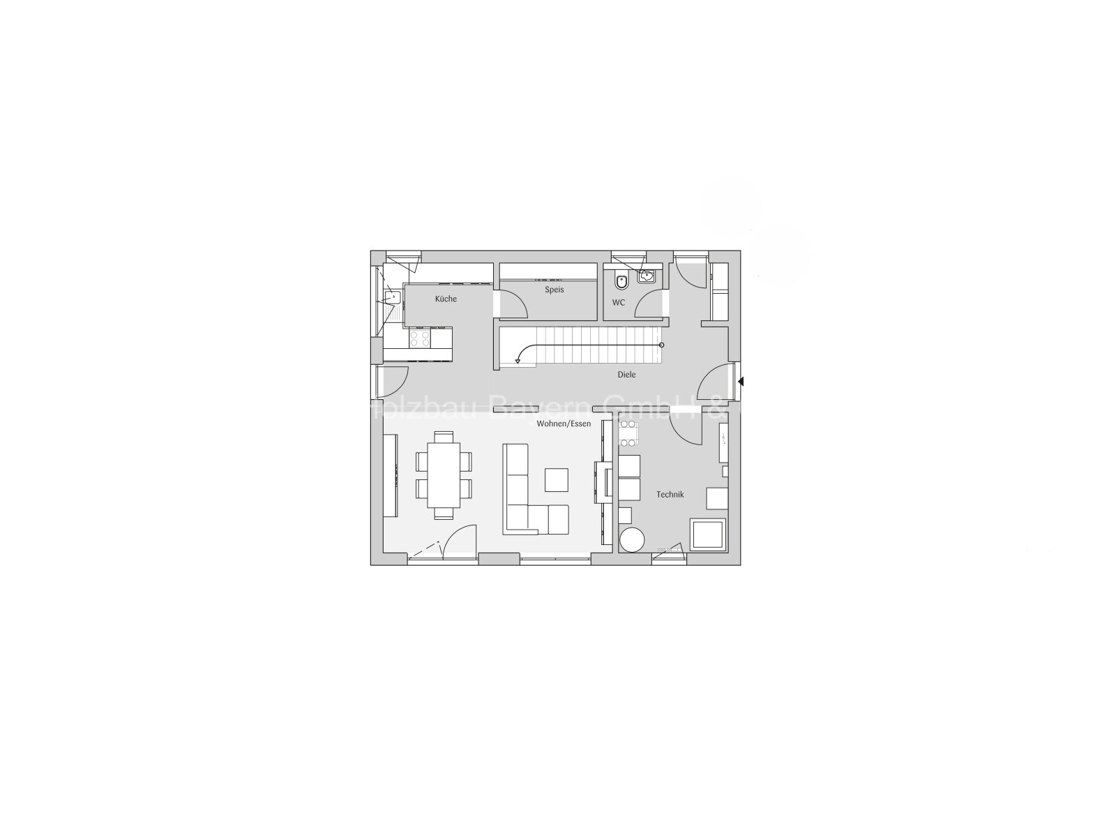
möglicher Grundriss

möglicher Grundriss









Preis:
489.000 €
Wohnfläche ca.:
140 m²
Grundstück ca.:
600 m²
Zimmeranzahl:
4
Willkommen bei FischerHaus.
Jedes Fischer Haus wird individuell nach Ihren Wünschen und Vorstellungen geplant und gebaut.
Die hier gezeigten Bilder und Beschreibungen zeigen Möglichkeiten.
Gerne besprechen wir im persönlichen Termin Ihr Wunschhaus und erstellen Ihnen ein individuelles Angebot.
Der Angebotspreis ist inklusive Grundstück und bezieht sich auf ein FischerHaus in der Ausbaustufe 2 = Technikfertig
-Inkl. Festpreisgarantie
-Inkl. Effizienzhaus 40 gemäß GEG
-Inkl. individueller Grundriss – und Hausgestaltung
-Inkl. Luft-Wasser-Wärmepumpe mit Fußbodenheizung
-Inkl. Elektroinstallation
-Inkl. Sanitärinstallation
-Inkl. hochwertige Haustüre und Fenster von Kneer-Süd Fenster
-Inkl. Baubegleitung
Auf Wunsch erhalten Sie auch eine PV Anlage mit Speicher und vieles mehr.
Optional bieten wir dir selbstverständlich das Haus auch in der Ausbaustufe 1 = rohbaufertig oder in der Ausbaustufe 3 = schlüsselfertig inklusive Möbel – und Küchenkonzept an.
Küche: offen
Bad: Fenster
Anzahl Schlafzimmer: 3
Anzahl Badezimmer: 1
Gäste-WC: ja
Qualität der Ausstattung: gehoben
Baujahr: 2026
Bauphase: Haus in Planung (projektiert)
Das könnte Ihnen auch gefallen

HBB Holzbau Bayern GmbH & Co. KG
Herr Robert Gerber
Steigfeld 3
63856 Bessenbach
Mobil: +49 175 5973712

























