Leinach:
Wohnen mit Aussicht!
Objekt-Nr.: AB13_25

mögliche Außenansicht

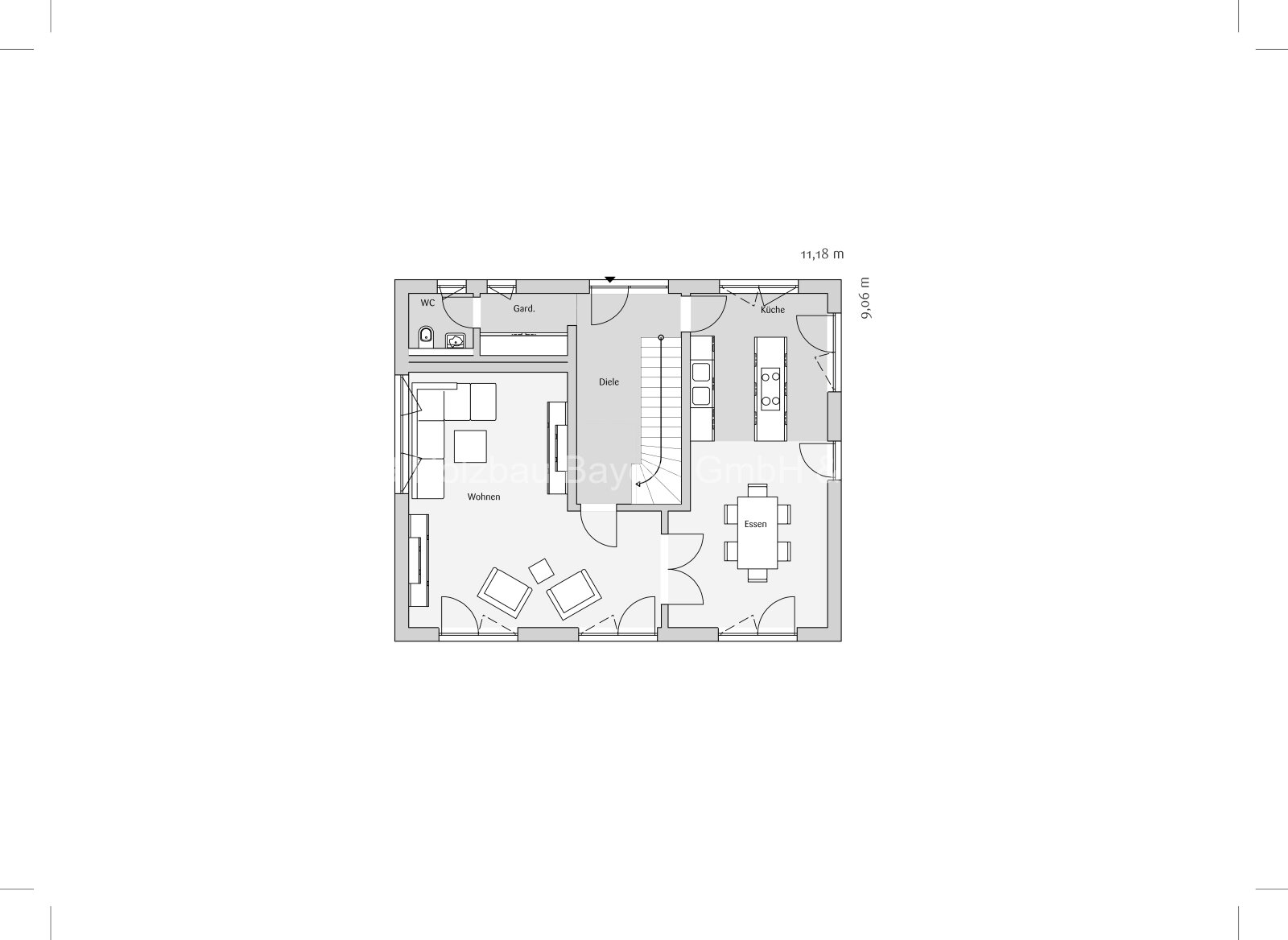
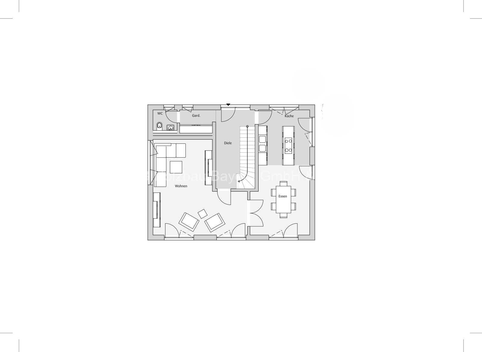
möglicher Grundriss

möglicher Grundriss

möglicher Außenansicht

Ihr Vorteil

Ihr Weg zum Fischer Haus

Ausstattungszentrum

Liebe baut








Preis:
568.000 €
Wohnfläche ca.:
140 m²
Grundstück ca.:
880 m²
Zimmeranzahl:
4
Willkommen bei FischerHaus.
Jedes Fischer Haus wird individuell nach Ihren Wünschen und Vorstellungen geplant und gebaut.
Die hier gezeigten Bilder und Beschreibungen zeigen Möglichkeiten und werden ganz nach Ihren Wünschen angepasst.
Gerne besprechen wir im persönlichen Termin Ihr Wunschhaus und erstellen Ihnen ein individuelles Angebot.
Der Angebotspreis ist inklusive Grundstück und bezieht sich auf ein FischerHaus in der Ausbaustufe 2 = Technikfertig
-Inkl. Festpreisgarantie
-Inkl. Effizienzhaus 40 gemäß GEG
-Inkl. individueller Grundriss – und Hausgestaltung
-Inkl. Luft-Wasser-Wärmepumpe mit Fußbodenheizung
-Inkl. Elektroinstallation
-Inkl. Sanitärinstallation
-Inkl. hochwertige Haustüre und Fenster von Kneer-Süd Fenster
-Inkl. Baubegleitung
Auf Wunsch erhalten Sie auch eine PV Anlage mit Speicher und vieles mehr.
Optional bieten wir dir selbstverständlich das Haus auch in der Ausbaustufe 1 = rohbaufertig oder in der Ausbaustufe 3 = schlüsselfertig inklusive Möbel – und Küchenkonzept an.
Küche: offen
Bad: Fenster
Anzahl Schlafzimmer: 3
Anzahl Badezimmer: 1
Gäste-WC: ja
Qualität der Ausstattung: gehoben
Baujahr: 2026
Bauphase: Haus in Planung (projektiert)
Zustand: Haus in Planung (projektiert)
Das könnte Ihnen auch gefallen
Wohnen in Kleinwallstadt
großes Grundstück in Sulzbach - kein Ortsteil!

HBB Holzbau Bayern GmbH & Co. KG
Herr Robert Gerber
Steigfeld 3
63856 Bessenbach
Mobil: +49 175 5973712























