Frensdorf/Schlüsselau:
Bungalow mit Grundstück in Schlüsselau
Objekt-Nr.: S-17-04


Preis:
321.222 €
Wohnfläche ca.:
128,75 m²
Grundstück ca.:
548 m²
Zimmeranzahl:
6
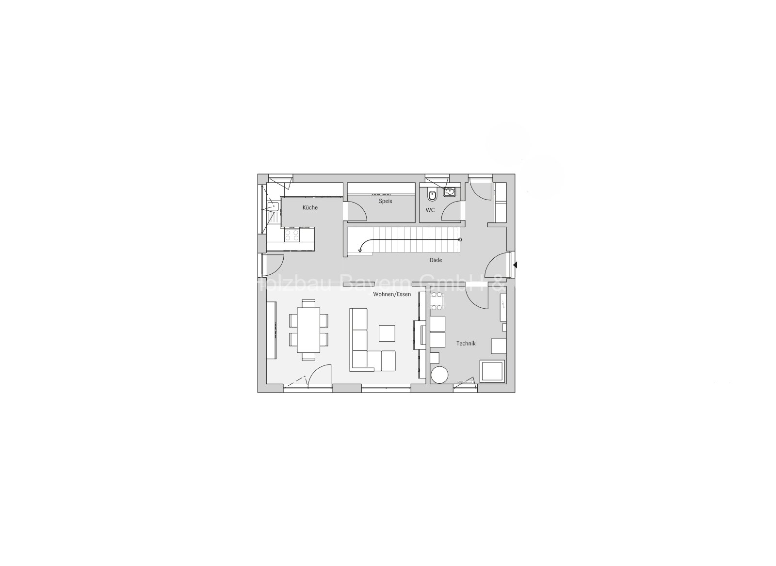
Das angebotene FISCHERHAUS hat ca.128,75 m² Wohn-Nutzfläche.
Das Haus wird in der AUSBAUSTUFE II angeboten und kann auf Kundenwunsch individuell geändert werden.
Das dazugehörige Grundstück (548,0 m²) liegt in einer schönen, zentralen Umgebung in Schlüsselau, so etwas findet man kaum noch in der Stadtnähe von Hirschaid und Bamberg.
Das Grundstück kann gekauft oder gepachtet werden. Ist nicht im o.g. Kaufpreis enthalten.
Haustyp: Bungalow
Etagenanzahl: 1
Nutzfläche ca.: 128,75 m²
Küche: Einbauküche
Bad: Dusche, Wanne, Fenster
Anzahl Schlafzimmer: 3
Anzahl Badezimmer: 1
Gäste-WC: ja
Garten: ja
Nichtraucher: ja
Dachboden: ja
Umgebung: Apotheke, Bahnhof, Einkaufscenter, Grundschule
Ausblick: Fernblick
Qualität der Ausstattung: normal
Baujahr: 2026
Bauphase: Haus in Planung (projektiert)
Bodenbelag: Laminat, Linoleum, Parkett
Zustand: Haus in Planung (projektiert)
Energieklasse: A++
Bei Abschluss eines Kaufvertrages kann es zu einer Vermittlung-/ Nachweisprovision kommen.
Die von uns gemachten Informationen beruhen auf Angaben des Verkäufers bzw. der Verkäuferin. Für die Richtigkeit und Vollständigkeit der Angaben kann keine Gewähr bzw. Haftung übernommen werden. Ein Zwischenverkauf und Irrtümer sind vorbehalten.
Weitere Grundstücke haben wir ein 2 in Pettstadt, 4 in Schlüsselau, 4 in Kleinbuchfeld, 6 in Adelsdorf -Aisch, 1 in Adelsdorf-Nainsdorf, um nur ein paar zu nennen und viele mehr.
Wir weisen auf unsere Allgemeinen Geschäftsbedingungen hin. Durch weitere Inanspruchnahme unserer Leistungen erklären Sie die Kenntnis und Ihr Einverständnis.
Das könnte Ihnen auch gefallen
Wohnen in Heimbuchenthal
Haus mit Grundstück - Ausbaustufe 1
Traumgrundstück n Adelsdorf/Aisch
















