Stamsried:
Haus mit Grundstück
Objekt-Nr.: RG - 0203












Preis:
436.900 €
Wohnfläche ca.:
120 m²
Grundstück ca.:
911 m²
Zimmeranzahl:
5
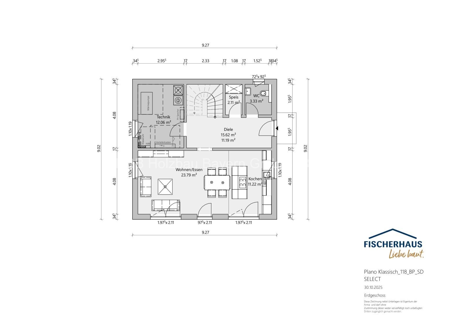
Willkommen in Ihrem zukünftigen Traumhaus, das in einem ruhigen Neubaugebiet in Stamsried entsteht. Hier erwartet Sie ein großzügiges Zuhause mit 5 Zimmern, das auf Ihre individuellen Wünsche und Bedürfnisse zugeschnitten wird. Auf 120 m² Wohnfläche finden Sie genügend Platz für die ganze Famiie. Das 911 m² große Grundstück bietet Ihnen Raum für Entspannung und kreative Gestaltung. Genießen Sie den Fernblick von Ihrem neuen Zuhause und die Vorzüge von 1,5 Etagen, die ein großzügiges Raumgefühl verleihen.
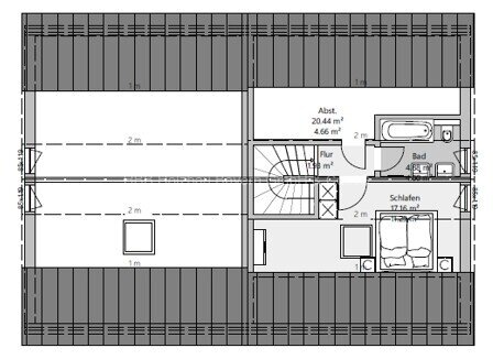
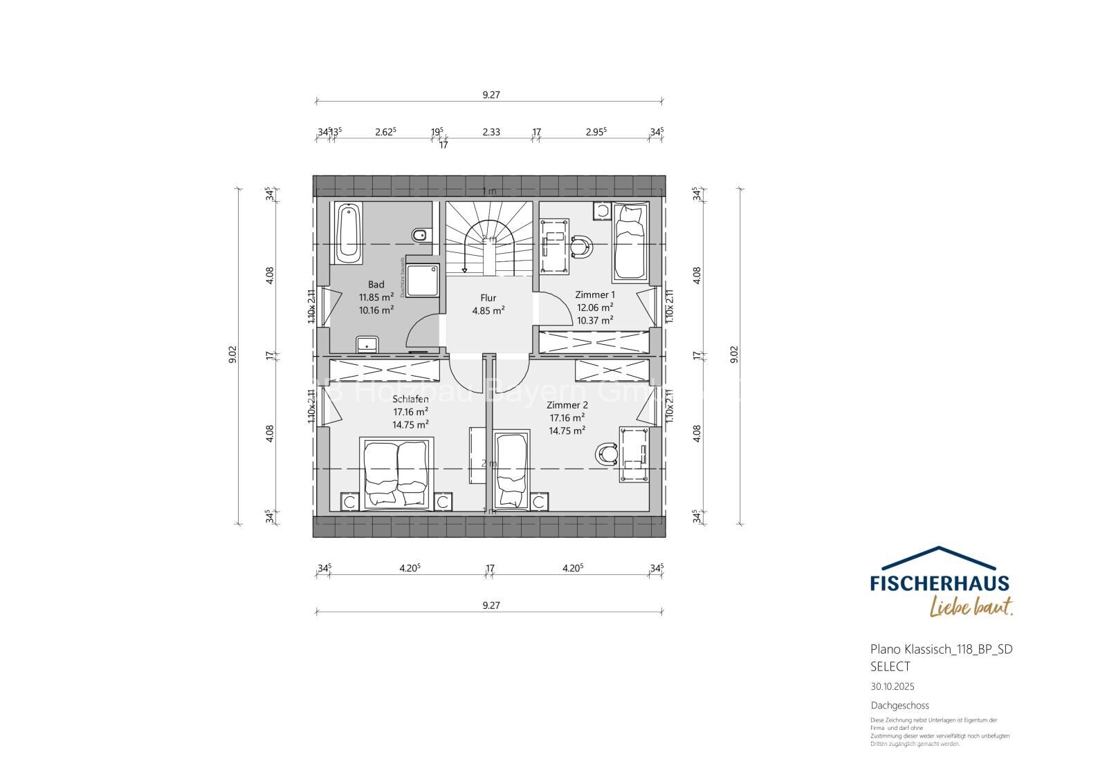
Das Badezimmer, ausgestattet mit Dusche, Wanne und Fenster, lädt dazu ein, sich nach einem langen Tag in der Badewanne zu entspannen und die Seele baumeln zu lassen. Das Tageslicht, das durch das Fenster strömt, verleiht dem Raum eine angenehme Atmosphäre. Ein separates Gäste-WC sorgt für zusätzlichen Komfort. Die gehobene Ausstattung und der praktische Dachboden bieten Ihnen zahlreiche Möglichkeiten zur individuellen Gestaltung und Nutzung.
Das Haus wird mit einer modernen Fußbodenheizung und einer umweltfreundlichen Wärmepumpe beheizt, was nicht nur für wohlige Wärme sorgt, sondern auch energieeffizient ist. Der Energietyp entspricht dem KFW40 Standard und garantiert Ihnen ein zukunftsorientiertes Wohnen.
Freuen Sie sich auf ein Zuhause, das nicht nur Ihren Vorstellungen entspricht, sondern auch den höchsten Ansprüchen gerecht wird.
Haustyp: Einfamilienhaus
Etagenanzahl: 2
Provisionspflichtig: nein
Nutzfläche ca.: 132 m²
Bad: Dusche, Wanne, Fenster
Anzahl Schlafzimmer: 3
Anzahl Badezimmer: 1
Terrasse: 1
Seniorengerecht: ja
Gäste-WC: ja
Garten: ja
Dachboden: ja
Umgebung: Apotheke, Bus, Einkaufsmöglichkeit, Grundschule, Kindergarten, ruhige Gegend, Spielplatz, Tennisplatz, Wohngegend
Anzahl der Parkflächen: 1 x Garage
Möbliert: nein
Ausblick: Fernblick
Qualität der Ausstattung: gehoben
Bauphase: Haus in Planung (projektiert)
Zustand: Haus in Planung (projektiert)
Das könnte Ihnen auch gefallen
Einfamilienhaus mit Grundstück in Pettstadt
HBB Holzbau Bayern GmbH & Co. KG
Herr Rene Gaupp
Mitterdorferstrasse 20
93426 Roding
Mobil: +49 173 5334744




















