Mespelbrunn:
Wohnen in Hessenthal!
Objekt-Nr.: AB17-26

mögliche Außenansicht




mögliche Außenansicht


mögliche Außenansicht









Preis:
469.000 €
Wohnfläche ca.:
120 m²
Grundstück ca.:
790 m²
Zimmeranzahl:
4
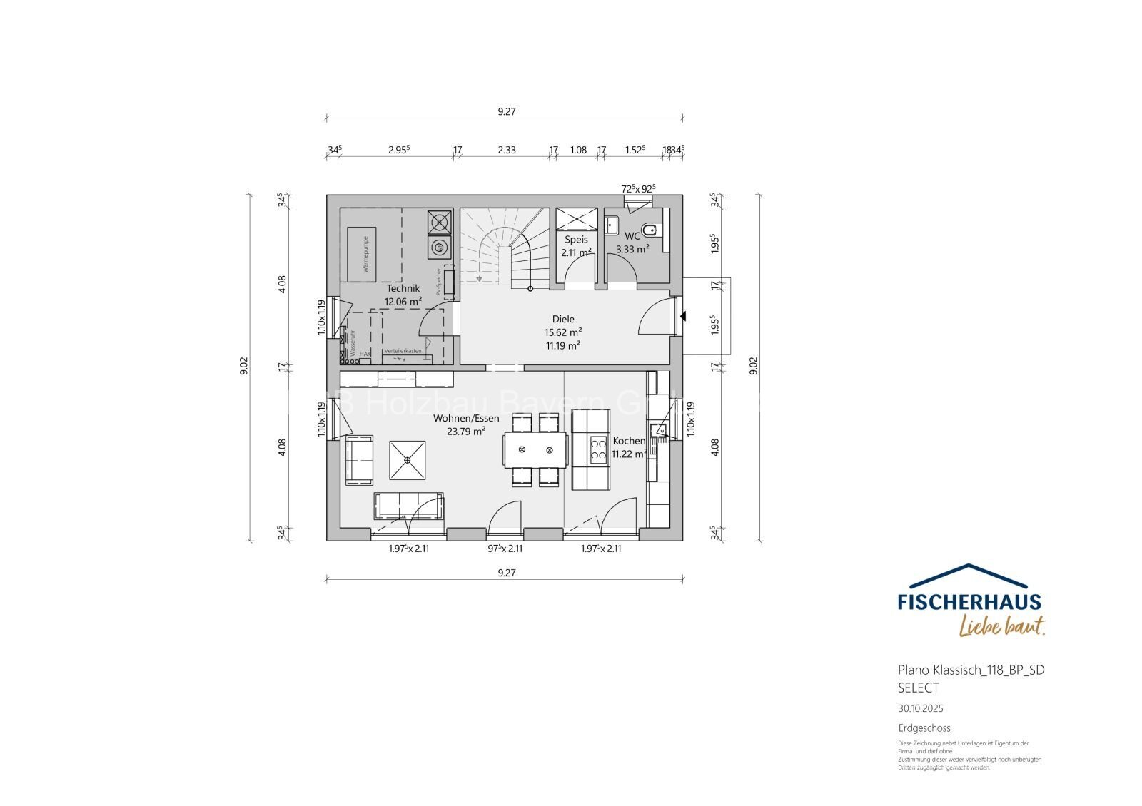
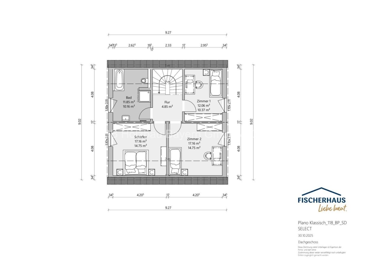
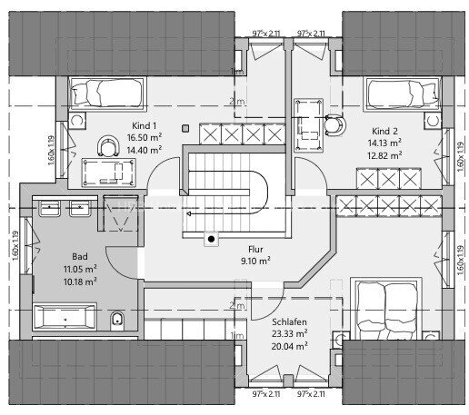
Willkommen in Ihrem zukünftigen Zuhause, wo Ihre individuellen Wünsche den Mittelpunkt des Geschehens bilden. Dieses charmante Haus wird in Mespelbrunn auf Kundenwunsch gebaut und bietet Ihnen die Möglichkeit, Ihre Vorstellungen in die Realität umzusetzen. Mit 4 Zimmern auf großzügigen 120 m² Wohnfläche und einem weitläufigen Grundstück von 790 m², haben Sie genügend Platz, um sich zu entfalten und mit Ihrer Familie unvergessliche Momente zu erleben.
Besonders hervorzuheben ist das helle Badezimmer, das mit einem Fenster ausgestattet ist und somit für Tageslicht sorgt – ein wahrer Luxus, der für ein angenehmes Raumklima sorgt. Zusätzlich steht Ihnen ein praktisches Gäste-WC zur Verfügung, ideal für Besuch. Die offene Küche lädt dazu ein, beim Kochen mit Familie und Freunden zu plaudern und gemeinsame Zeit zu verbringen. Die gehobene Ausstattung verspricht höchsten Wohnkomfort und lässt keine Wünsche offen.…
Der Angebotspreis ist inklusive Grundstück und bezieht sich auf ein FischerHaus in der Ausbaustufe 2 = Technikfertig
-Inkl. Festpreisgarantie
-Inkl. Effizienzhaus 40 gemäß GEG
-Inkl. individueller Grundriss – und Hausgestaltung
-Inkl. Luft-Wasser-Wärmepumpe mit Fußbodenheizung
-Inkl. Elektroinstallation
-Inkl. Sanitärinstallation
-Inkl. hochwertige Haustüre und Fenster von Kneer-Süd Fenster
-Inkl. Baubegleitung
Auf Wunsch erhalten Sie auch eine PV Anlage mit Speicher und vieles mehr.
Optional bieten wir dir selbstverständlich das Haus auch in der Ausbaustufe 1 = rohbaufertig oder in der Ausbaustufe 3 = schlüsselfertig inklusive Möbel – und Küchenkonzept an.
Küche: offen
Bad: Fenster
Anzahl Schlafzimmer: 3
Anzahl Badezimmer: 1
Gäste-WC: ja
Qualität der Ausstattung: gehoben
Baujahr: 2027
Bauphase: Haus in Planung (projektiert)
Zustand: Haus in Planung (projektiert)
Das könnte Ihnen auch gefallen
Traumgrundstück mit Einfamilienhaus in Pettstadt

HBB Holzbau Bayern GmbH & Co. KG
Herr Robert Gerber
Steigfeld 3
63856 Bessenbach
Mobil: +49 175 5973712





















